Foto leveres af Google Street View og kan være upræcist:
Andelsbolig til salg, Holbæk, Konsul baÿers allé 32 2 mf
Konsul baÿers allé 32 2 mf, 4300 Holbæk- Andelsbolig til salg
- 61 m2
- 739.365 kr.
Konsul baÿers allé 32 2 mf, 4300 Holbæk
- Andelsbolig til salg
- 61 m2
- 739.365 kr.
FÅ MERE INFO OM BOLIGEN
Du linkes til en anden portal, som evt. kan kræve betaling eller oprettelse
Andelsbolig til salg, Holbæk, Konsul baÿers allé 32 2 mf
Fakta
- 777509
- 61 m2
- 2
- 739.365 DKK
- 3.289 DKK
FÅ MERE INFO OM BOLIGEN
Du linkes til en anden portal, som evt. kan kræve betaling eller oprettelse
Andelsbolig med udsigt over Holbæk Fjord
Er du på udkig efter en hyggelig toværelses lejlighed, der kombinerer central beliggenhed med rolige omgivelser? Denne 61 m² lejlighed giver dig det bedste fra begge verdener – du er tæt på alt, men alligevel omgivet af ro. Fra din egen altan kan du nyde den imponerende udsigt over Holbæk Fjord og Tuse Næs.
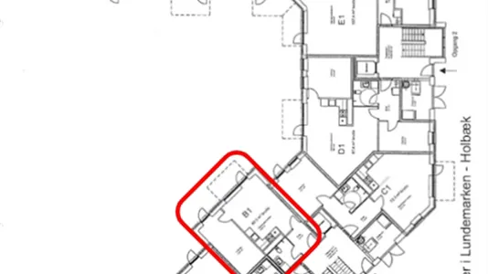
Lejligheden:
Lejligheden er både funktionel og indbydende, og her får du
- Et åbent køkken i forbindelse med stuen, hvor du kan tilberede mad og samtidig nyde den smukke udsigt.
- Altan, i forbindelse med stue, med udsigt over Holbæk fjord
- Et stort værelse med masser af plads til både seng, opbevaring, og kontorplads. Udsigten over Holbæk fjord, kan også nydes herfra.
- Baderum med gulvvarme, og plads til vaskemaskine og tørretumbler
- Tilhørende 6 m² kælderrum
- Der er elevator i bygningen, hvilket gør det nemt at komme rundt.
- Hvis du ejer en elbil, kan du glæde dig over, at foreningen har opsat ladestandere.
Beliggenhed
Lejligheden ligger i et roligt, men samtidig super centralt område. Du er tæt på både Holbæk by, Isefjorden og Knudskov, og det tager kun 7 minutter at gå til Holbæk station, hvor du har togforbindelser til både København og Kalundborg. Der er 10 min gang til Algade, og 5 min gang til skov knudskoven
Andelsforeningen
A/B Beÿers Bakke er en velfungerende og økonomisk solid andelsforening, og det mærkes i både de flotte fællesarealer og den trygge økonomi. Her bor du et sted, hvor tingene fungerer, og du kan føle dig hjemme.
Praktisk info
Værdiansættelsen af andelsboligen følger den offentlige ejendomsvurdering, og på foreningens hjemmeside kan du finde alle de nødvendige dokumenter som regnskaber, budgetter og vedtægter.
Hvis dette lyder som noget for dig, så giv mig et kald, og lad os finde et tidspunkt, hvor du kan komme forbi og se lejligheden.
Lejligheden:
Lejligheden er både funktionel og indbydende, og her får du
- Et åbent køkken i forbindelse med stuen, hvor du kan tilberede mad og samtidig nyde den smukke udsigt.
- Altan, i forbindelse med stue, med udsigt over Holbæk fjord
- Et stort værelse med masser af plads til både seng, opbevaring, og kontorplads. Udsigten over Holbæk fjord, kan også nydes herfra.
- Baderum med gulvvarme, og plads til vaskemaskine og tørretumbler
- Tilhørende 6 m² kælderrum
- Der er elevator i bygningen, hvilket gør det nemt at komme rundt.
- Hvis du ejer en elbil, kan du glæde dig over, at foreningen har opsat ladestandere.
Beliggenhed
Lejligheden ligger i et roligt, men samtidig super centralt område. Du er tæt på både Holbæk by, Isefjorden og Knudskov, og det tager kun 7 minutter at gå til Holbæk station, hvor du har togforbindelser til både København og Kalundborg. Der er 10 min gang til Algade, og 5 min gang til skov knudskoven
Andelsforeningen
A/B Beÿers Bakke er en velfungerende og økonomisk solid andelsforening, og det mærkes i både de flotte fællesarealer og den trygge økonomi. Her bor du et sted, hvor tingene fungerer, og du kan føle dig hjemme.
Praktisk info
Værdiansættelsen af andelsboligen følger den offentlige ejendomsvurdering, og på foreningens hjemmeside kan du finde alle de nødvendige dokumenter som regnskaber, budgetter og vedtægter.
Hvis dette lyder som noget for dig, så giv mig et kald, og lad os finde et tidspunkt, hvor du kan komme forbi og se lejligheden.
Information og data
Denne bolig til salg ligger på Konsul baÿers allé 32 2 mf i Holbæk. Holbæk har postnummeret 4300, og ligger i kommunen Holbæk, som ligger på Region Sjælland. Boligen er i alt 61 m2 fordelt på 2 separate værelser. Boligydelsen er 3.289 kr. per måned. Salgsprisen for boligen er 739.365 kr..